Looking for a free valuation? Request a free valuation

Darwin Green, Cambridge, CB3 0GX

Price £619,995

Superb city home in this well connected area of Cambridge. Excellent connectivity for Cambridge Science Park, Cambridge North and central city. Many sustainable features included with this home.

** STYLISH 4 BEDROM HOME IN PRIME CAMBRIDGE LOCATION **

Discover modern city living in this beautifully designed four bedroom home, set across three spacious floors in the sought after Darwin Green development - just 1.6 miles from the heart of Cambridge.

** PROPERTY HIGHLIGHTS **
Ground Floor - enjoy a bright, open plan kitchen, dining and family area with French doors leading to a private rear garden - perfect for entertaining or relaxing.

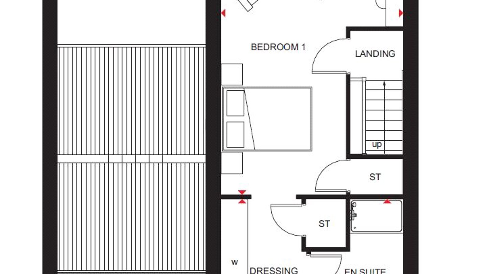
First Floor - features three generous double bedrooms and a contemporary family bathroom.

Top Floor - A luxurious main suite occupies the entire top floor, complete with a dressing area and a stylish en suite bathroom.

There are a number of plots of The Oakington housetype available, of varying situations and prices. Please ask for further details.

** BUILT FOR THE FUTURE **

This home is equipped with a suite of energy-efficient features as standard:

* Electric vehicle charging point
* Solar photovoltaic panels
* Argon filled double glazing
* Flue gas heat recovery system
* Waste water heat recovery
* Decentralised mechanical extract ventilation (d-MEV)
* Smart thermostat for intelligent climate control

** WHY LIVE IN DARWIN GREEN **
Located within the vibrant Darwin Green community, residents will enjoy:

+ Prime location! +
- Just 1.6 miles from Cambridge city centre, making it ideal for professionals, families and students.
- Easy access to Cambridge University, tech hubs and research parks
+ Excellent transport links +
- Quick access to the A14 and M11 for commuting by car.
- Reach London King's Cross in as little as 47 minutes by train - perfect for hybrid or remote workers needing occasional city access
+ Green spaces & community living +
- Features a 15 acre central park, sports pitches and landscaped open spaces
- Designed to foster a sense of community with walkable streets and future amenities like shops and schools
+ Modern, energy efficient homes +
- Homes come with solar panels, EV charging points, smart thermostats and high grade insulation
- Lower energy bills and a smaller carbon footprint
+ Future proofed development +
- Planned infrastructure includes retail spaces, schools and healthcare facilities
- A long term vision for a self-sustaining, well connected neighbourhood
+ Education & Family Friendly +
- Close to top rated school and nurseries
- Safe, family oriented environment with plenty of outdoor space for children.

NOTE: EXTERNAL IMAGE IS OF THE OAKINGTON HOUSE TYPE, IT IS NOT PLOT SPECIFIC.
  • Superb city home in a prime location with easy access to many areas
  • Local amenities include a 15 acre central park, sports pavilion, football pitches
  • Cycle route through the Darwin Green development making commuting easy
  • Solar panels and EV Charging pod
  • Improved ventilation
  • Smart thermostat
  • Excellent specification

  • Garden: Yes

Mortgage Calculator

£2,876 per month

These figures are only intended as a guide. Please make sure you obtain accurate figures from your lender before committing to any mortgage. 

Train Stations:

  • Cambridge (Cambridge North)

    3.93km

  • Cambridge (Cambridge station)

    3.94km

  • Cambridge (Cambridge Railway Station)

    3.96km

  • Cambridge (Cambridge Train Station)

    5.83km

Property Advisor

Image of E_260116_N16

Luke Pearce

Senior New Homes Sales Executive

Search Bidwells

Arrange a viewing for this property

Thank you, one of our agents will be in touch to arrange a viewing for this property.

Preferred time to view
Preferred days to view

T&C's

By submitting your information, your details will be added to our property marketing database. You can amend this at any time by visiting our Preference Centre.

Close icon