High Street, Little Eversden, Cambridge, CB23 1HE
Offers over£200,000














Best talk to Bidwells.
Rebecca Wilson
Partner, Head of Residential New Homes, Cambridge

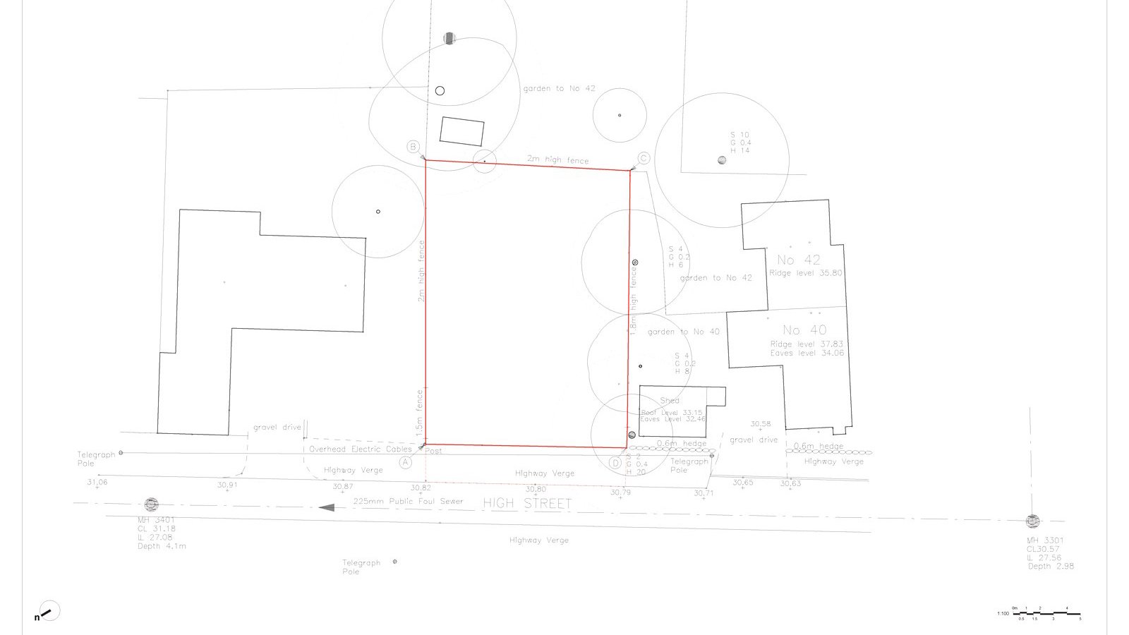
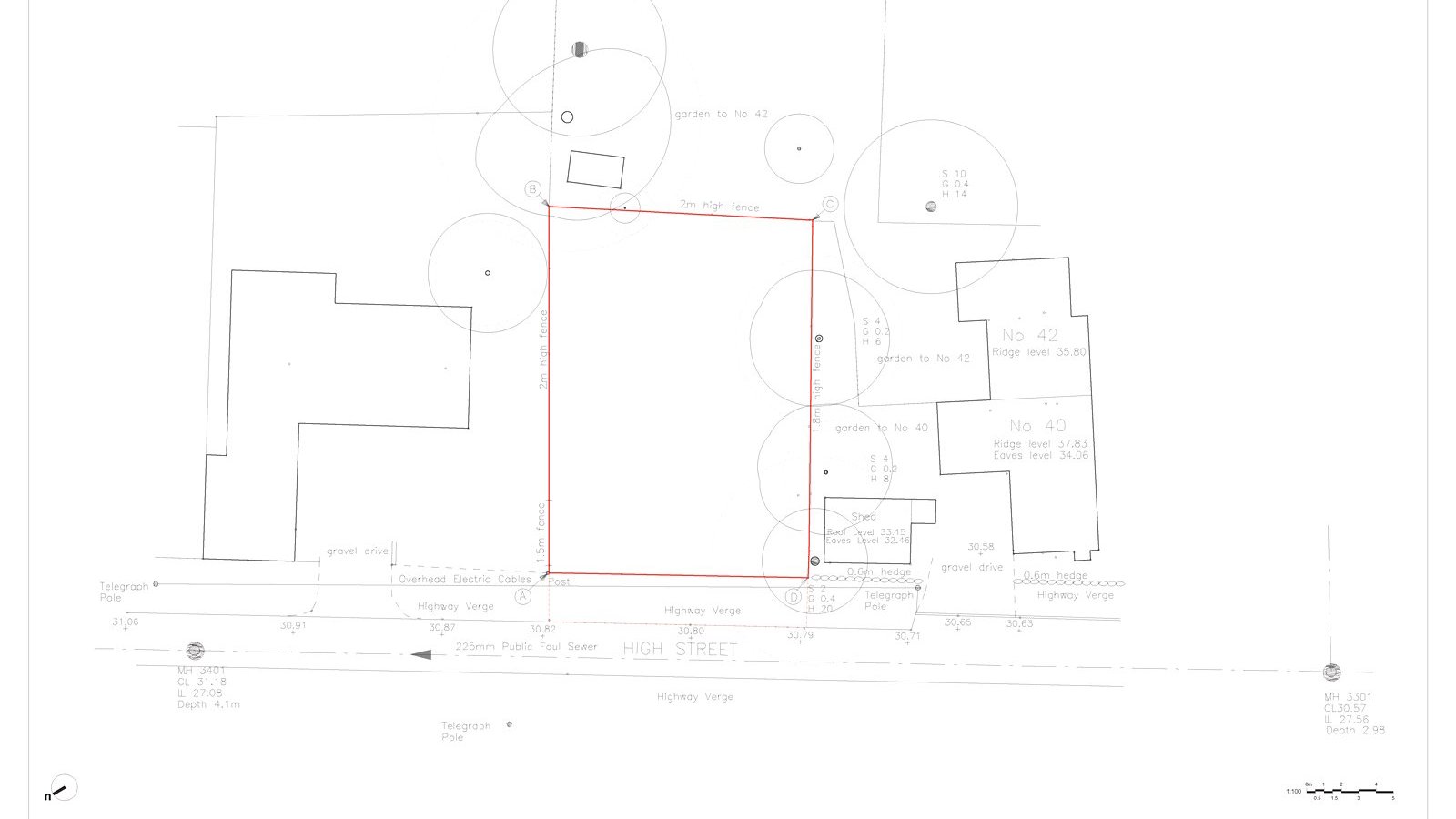
A superb single building plot with planning sitting adjacent to 40 and 42 High Street with consent for a 2 storey house with a GIA of 138 sq m (1,485 sq ft).
Key features
- Single building plot with detailed planning consent
- Sitting on the High Street in this popular village
- Consent granted for the construction oof a 1485 sq ft two storey house
- Further details available by request
The site plan and floor plans are detailed below and further information is available under planning reference 24/02957/FUL.
Location
Little Eversden is a small, attractive village conveniently situated about 7 miles south west of Cambridge. There is a recreation ground with play area for young children within close proximity, an Italian restaurant within about half a mile and an Indian restaurant and village hall in the neighbouring village of Great Eversden.
Primary school education is available in the nearby village of Comberton (about 3.5 miles) together with secondary school and sixth form education at the highly acclaimed Comberton Village College.
The University City of Cambridge offers a wide range of shopping, schooling and cultural amenities and is easily accessible via the A603.
For the commuter, the nearby M11 (junction 12) provides access to Stansted Airport and London to the south and also links with the A14, providing access to the A1/M to the north. There is a mainline railway station at Royston (about 9 miles), which provides a fast train service to London's King's Cross in about 38 minutes.
Tenure
The freehold of the site is offered for sale with vacant possession on completion.
Services
Interested Parties must satisfy themselves as to the availability and adequacy of all services prior to making their unconditional offer.
Wayleaves, easements, covenants
The site is sold subject to all wayleaves, easements, covenants and rights of way, whether or not disclosed.
Method of Sale
The freehold of the Site is offered for sale by Informal Tender on an unconditional basis
VAT
We understand that the seller has not elected to opt the Property to tax, therefore VAT will not be charged in addition to the purchase price.
New Homes
Bidwells has evidence of new home sales in the locality. For specific queries with regards to resale values, please contact the Bidwells New Homes team
Images shown are of the site and computer images of the proposed new build home.
Location
Location
Train Stations
- Shepreth 5.53km
- Foxton 5.82km
- Meldreth 7.91km
- Cambridge (Cambridge Train Station) 8.97km
Mortgage Calculator
These figures are only intended as a guide. Please make sure you obtain accurate figures from your lender before committing to any mortgage.
Best talk to Bidwells.

Rebecca Wilson
Partner, Head of Residential New Homes, Cambridge
Featured properties to buy






Cowsland Farm and Forwood Farmland, Retford, Nottinghamshire
& Gainsborough,, Lincolnshire, DN22 0EA
& Gainsborough,, Lincolnshire, DN22 0EA
& Gainsborough,, Lincolnshire, DN22 0EA & Gainsborough,, Lincolnshire, DN22 0EA



Cowsland Farmland, South Leverton
Retford, Nottinghamshire, DN22 0EA
Retford, Nottinghamshire, DN22 0EA
Retford, Nottinghamshire, DN22 0EA Retford, Nottinghamshire, DN22 0EA





Land At Standlake, Abingdon
Oxfordshire, OX29 7QB
Oxfordshire, OX29 7QB
Oxfordshire, OX29 7QB Oxfordshire, OX29 7QB





Back Street, Thornborough
Buckingham, Buckinghamshire, MK18 2DH
Buckingham, Buckinghamshire, MK18 2DH
Buckingham, Buckinghamshire, MK18 2DH Buckingham, Buckinghamshire, MK18 2DH





Cowsland Farm and Forwood Farmland, Retford, Nottinghamshire
& Gainsborough,, Lincolnshire, DN22 0EA
& Gainsborough,, Lincolnshire, DN22 0EA
& Gainsborough,, Lincolnshire, DN22 0EA & Gainsborough,, Lincolnshire, DN22 0EA



Cowsland Farmland, South Leverton
Retford, Nottinghamshire, DN22 0EA
Retford, Nottinghamshire, DN22 0EA
Retford, Nottinghamshire, DN22 0EA Retford, Nottinghamshire, DN22 0EA





Land At Standlake, Abingdon
Oxfordshire, OX29 7QB
Oxfordshire, OX29 7QB
Oxfordshire, OX29 7QB Oxfordshire, OX29 7QB





Back Street, Thornborough
Buckingham, Buckinghamshire, MK18 2DH
Buckingham, Buckinghamshire, MK18 2DH
Buckingham, Buckinghamshire, MK18 2DH Buckingham, Buckinghamshire, MK18 2DH