Great Tripps Barn, Shimpling Road, Hartest, IP29 4EY
Offers in Excess of£325,000
















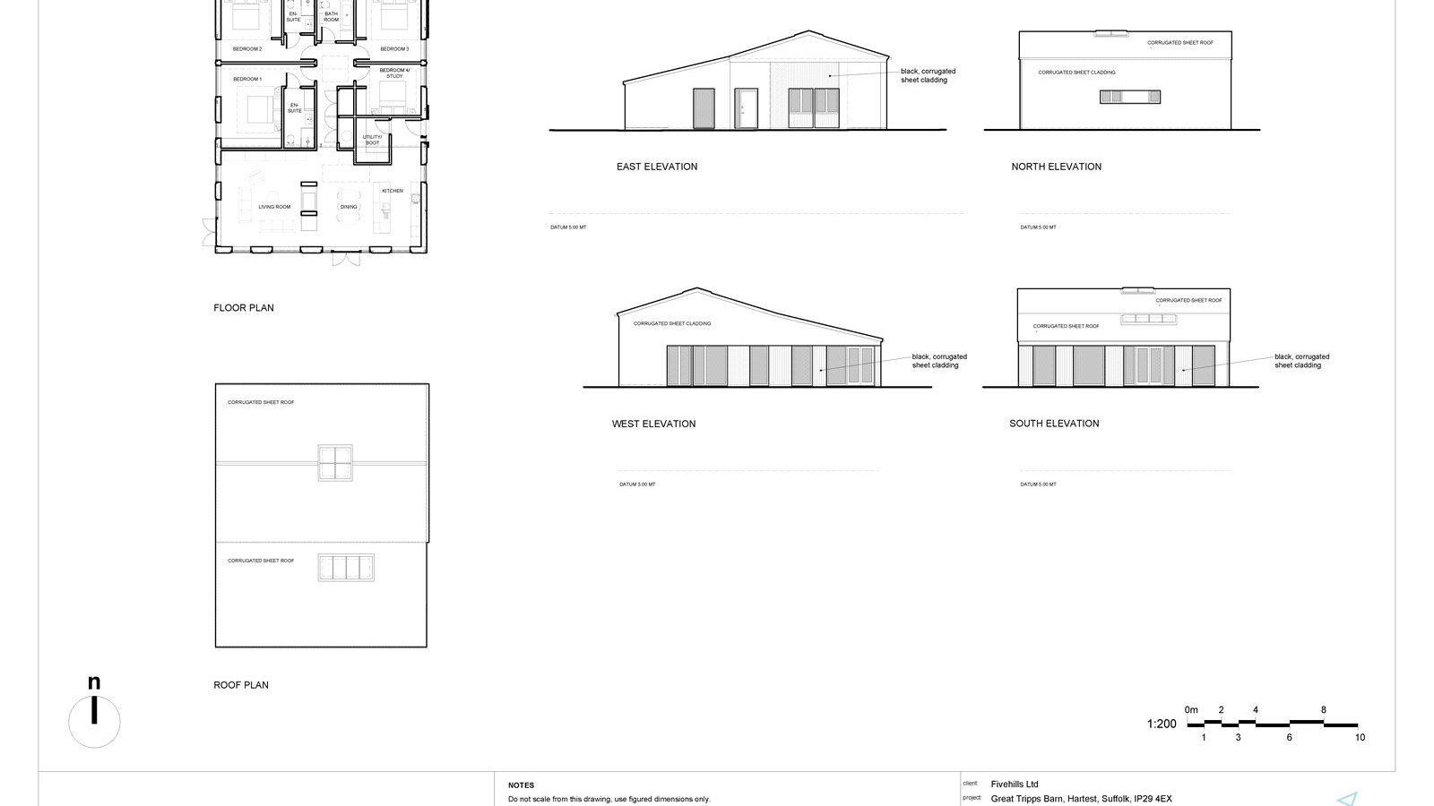
An opportunity to purchase an agricultural building with planning consent for conversion to a four-bedroom dwelling.
Great Tripps Barn is set in 0.22 acre (0.091 hectare) with picturesque views over te surrounding countryside.
The barn is constructed from a steel portal frame with a lean to under a corrugated roof.
Planning consent granted under Part 3 Class Q of the Town and Country Planning (General Permitted Development) (England) Order 2015 (as amended)
The consented scheme is for the conversion of the existing building to a detached dwelling comprising open-plan living room and kitchen, four bedrooms (2 en suite), family bathroom and utility room.
The living area features floor to ceiling windows overlooking the surrounding countryside.
Additional land may be available to purchase by separate negotiation.
Location
Location
Train Stations
- Sudbury 10.68km
- Sudbury 10.80km
- Bury St Edmunds 13.90km
- Thurston 15.66km
Featured properties to buy






Hunton Park, Abbots Langley
Hertfordshire, WD4 8PR
Hertfordshire, WD4 8PR
Hertfordshire, WD4 8PR Hertfordshire, WD4 8PR





Buildings At Strawberry Hill Farm, Knotting Green
Bedfordshire, MK44 1AA
Bedfordshire, MK44 1AA
Bedfordshire, MK44 1AA Bedfordshire, MK44 1AA





Development Opportunity, Campbeltown Road
Tarbert, PA29 6YF
Tarbert, PA29 6YF
Tarbert, PA29 6YF Tarbert, PA29 6YF





Hunton Park, Abbots Langley
Hertfordshire, WD4 8PR
Hertfordshire, WD4 8PR
Hertfordshire, WD4 8PR Hertfordshire, WD4 8PR





Buildings At Strawberry Hill Farm, Knotting Green
Bedfordshire, MK44 1AA
Bedfordshire, MK44 1AA
Bedfordshire, MK44 1AA Bedfordshire, MK44 1AA





Development Opportunity, Campbeltown Road
Tarbert, PA29 6YF
Tarbert, PA29 6YF
Tarbert, PA29 6YF Tarbert, PA29 6YF