Lavenham Road, Little Waldingfield, Sudbury, CO10 0TQ
Guide Price£295,000


























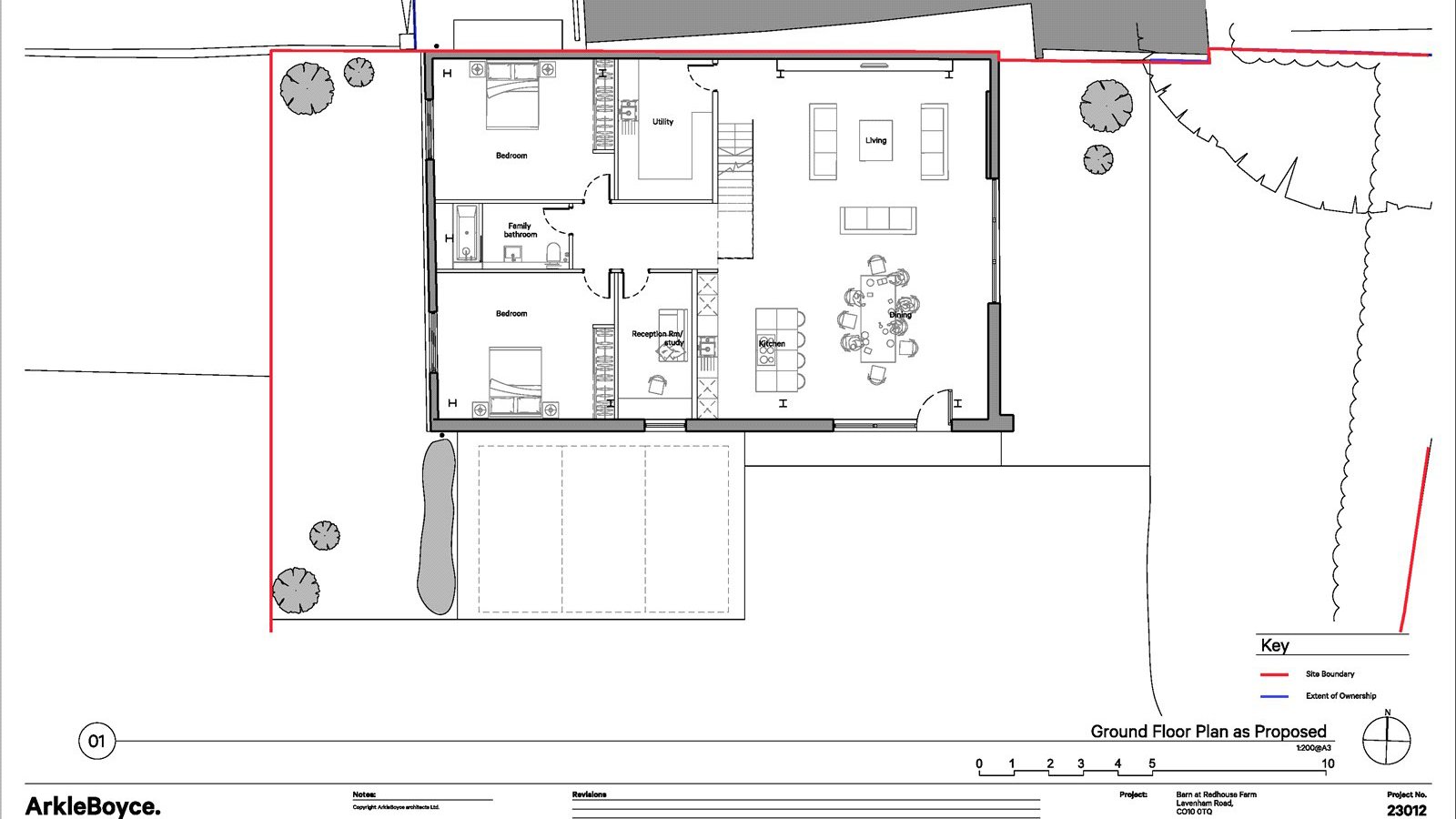
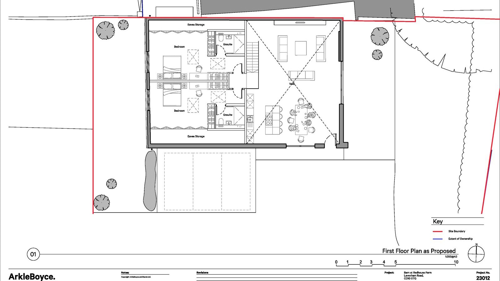
An opportunity to purchase a barn with planning consent for conversion to a four bedroom dwelling, located in an attractive area of Suffolk countryside.
The property comprises an agricultural building and associated curtilage. The existing building is of red brick elevations and constructed of a brick trussed wooden frame under corrugated fibre cement roof.
The consented scheme is for the conversion of the existing building to a detached residential dwelling comprising four bedrooms (two downstairs and two upstairs with en suite bathrooms), a large kitchen, dining and living space with vaulted ceilings, a utility room and a reception room/study
The building extends to 2,700 sq ft (251 sqm) and the site area is 0.17 acre (0.017 hectare)
Location
Location
Train Stations
- Sudbury 5.95km
- Sudbury 6.00km
- Bures 11.98km
- Colchester 17.07km
Featured properties to buy






£800,000
Back Street, Thornborough
Buckingham, Buckinghamshire, MK18 2DH
Back Street, Thornborough Buckingham, Buckinghamshire, MK18 2DH

















Brinkley Road, Dullingham
Newmarket, Cambridgeshire, CB8 9UW
Brinkley Road, Dullingham Newmarket, Cambridgeshire, CB8 9UW





£800,000
Back Street, Thornborough
Buckingham, Buckinghamshire, MK18 2DH
Back Street, Thornborough Buckingham, Buckinghamshire, MK18 2DH

















Brinkley Road, Dullingham
Newmarket, Cambridgeshire, CB8 9UW
Brinkley Road, Dullingham Newmarket, Cambridgeshire, CB8 9UW