Blinco Grove, Cambridge, Cambridgeshire, CB1 7TX
Rent£3,000 pcm




































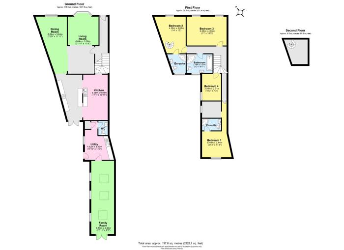
Property specification
- 4 Bedrooms
- 3 Bathrooms
- 4 Reception rooms
A charming semi detatched four bedroom Victorian house, ideally located off Hills Road, providing easy access to the city centre and the mainline railway station.
Key features
- Living room features fireplace, cream carpets, bay sash windows.
- Lounge/Dining room has wooden flooring.
- Fitted kitchen with stone and wooden worktops, double oven, gas hob, extractor hood, dishwasher and stone tiled flooring.
- Large utility room with washing machine.
- Expansive family room with tiled flooring and folding glass doors to the back garden.
- First floor with four bedrooms, two en suite and a family bathroom.
- A second-floor loft room/ space.
- Generous enclosed garden with paved area at the back of the property.
The property is situated in this popular residential area on the south side of the city, conveniently placed for access to Addenbrooke's Hospital and a mainline railway station with services to King's Cross in about 50 minutes and Liverpool Street in about 70 minutes. Morley Memorial Primary School is on the opposite side of the road and The Perse School for Boys is within a few hundred yards. There are also Sixth Form Colleges in Hills Road and Long Road.
This well presented mid-terraced Victorian house benefits from a fully fitted kitchen, three double bedrooms, one single, two comprise ensuites, and four reception rooms.
Location
Location
Train Stations
- Cambridge (Cambridge Railway Station) 0.99km
- Cambridge (Cambridge station) 1.00km
- Cambridge (Cambridge Train Station) 1.48km
- Great Shelford 4.19km
Schools - School Checker
Affordability Calculator
Use our calculator to find out if you can afford the rent for this property, using your annual salary
Please note: If you're able to pay up front for the property, or provide a Guarantor, you may still be eligible
Featured properties to rent






Milne Avenue, Eddington
Cambridge, Cambridgeshire, CB3 1BD
Cambridge, Cambridgeshire, CB3 1BD






Montague Road, Cambridge
Cambridgeshire, CB4 1BU
Cambridgeshire, CB4 1BU






The Oaks, Milton
Cambridge, Cambridgeshire, CB24 6ZG
Cambridge, Cambridgeshire, CB24 6ZG






Old School Lane, Whittlesford
Cambridge, Cambridgeshire, CB22 4YS
Cambridge, Cambridgeshire, CB22 4YS






Milne Avenue, Eddington
Cambridge, Cambridgeshire, CB3 1BD
Cambridge, Cambridgeshire, CB3 1BD






Montague Road, Cambridge
Cambridgeshire, CB4 1BU
Cambridgeshire, CB4 1BU






The Oaks, Milton
Cambridge, Cambridgeshire, CB24 6ZG
Cambridge, Cambridgeshire, CB24 6ZG






Old School Lane, Whittlesford
Cambridge, Cambridgeshire, CB22 4YS
Cambridge, Cambridgeshire, CB22 4YS