Church Farm, Stoke Goldington, Newport Pagnell, MK16 8NZ
Guide Price£10,750,000




























































Property specification
- 5 Bedrooms
An opportunity to acquire an attractive commercial and amenity farm in a highly desirable part of North Buckinghamshire.
Church Farm is located on the edge of the sought-after village of Stoke Goldington, close to Newport Pagnell, Milton Keynes, Bedford and Northampton.
Church Farm comprises a listed farmhouse, modern and traditional buildings, arable land, pasture land and woodland.
Church Farmhouse is a Grade ll Listed property, formerly a Manor House. The east wing dates back to the 16th Century with newer additions in the 17th and 18th Century. The farmhouse is constructed of Coursed Rubblestone and has many original features. On the ground floor is a large kitchen, dining room with exposed beams, living room and drawing rooms, both with fireplaces and an adjoining annexe with a bedroom, living room and bathroom. On the first floor are five bedrooms (one en suite) and a family bathroom. The second-floor attic offers potential for further accommodation (subject to planning and Listed Building Consents).
The farmhouse provides accommodation, extending to 4,732 sq ft (439.61 sq m) including the cellar and attic). with scope to extend (subject to planning). The property is set in mature gardens and has wonderful views over the surrounding countryside.
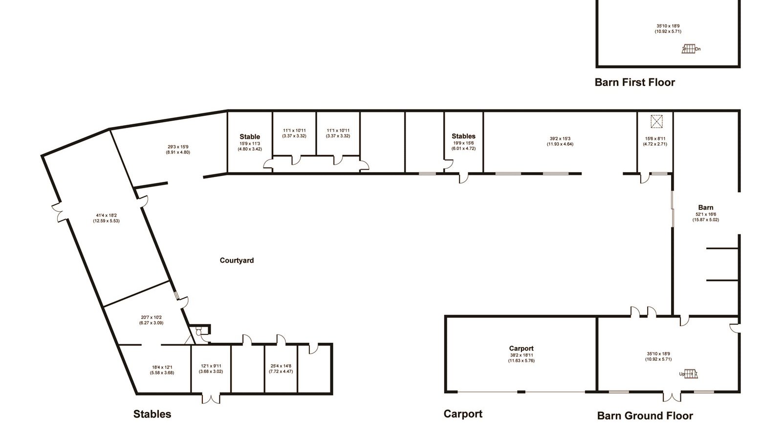
The farmyard comprises both modern grain storage and traditional buildings extending to 52,196 sq ft. The traditional buildings are mainly set in a courtyard and offer development opportunities (subject to planning). The modern buildings offer 5,000 tonnes crop storage and general purpose buildings.
The farmland is classified as Grade 2 and Grade 3 on the DEFRA published Agricultural Land Classification of England and Wales and is predominantly of the Hanslope series. The arable land extends to 661.59 acres and the permanent pasture land extends to 75.59 acres.
Stoke Park Wood, 158.49 acres of mixed woodland, lies on the western side of Church Farm and is a haven for wildlife and plants.
Harley Field Barn offers an opportunity to purchase a stone barn, set in half an acre, with potential for conversion (subject to planning).
In all approximately 906.17 (366.721 hectares) for sale as a whole or in 9 Lots:
Lot 1: Church Farmhouse and pasture land. 18.79 acres (7.604 hectares)
Lot 2: Traditional buildings. 0.31 acre (0.127 hectare)
Lot 3: Yard, modern farm building and arable land. 244.91 acres (99.114 hectares)
Lot 4: Stoke Park Wood. 158.49 acres (64.138 hectares)
Lot 5: Arable land 304.12 acres (123.076 hectares)
Lot 6: Pasture land 57.43 acres (23.240 hectares)
Lot 7: Arable land 59.58 acres (24.110 hectares)
Lot 8: Arable land 62.04 acres (25.108 hectares)
Lot 9: Harley Field Barn 0.50 acre (0.202 hectare)
Location
Location
Train Stations
- Stonebridge 7.90km
- Cogenhoe 11.00km
- Central Milton Keynes 11.29km
- Northampton 13.37km
Schools - School Checker
Featured properties to buy






Cowsland Farm and Forwood Farmland, Retford, Nottinghamshire
& Gainsborough,, Lincolnshire, DN22 0EA
& Gainsborough,, Lincolnshire, DN22 0EA






Antelope Way, Cambridge
Cambridgeshire, CB1 9GT
Cambridgeshire, CB1 9GT






Cowsland Farm and Forwood Farmland, Retford, Nottinghamshire
& Gainsborough,, Lincolnshire, DN22 0EA
& Gainsborough,, Lincolnshire, DN22 0EA






Antelope Way, Cambridge
Cambridgeshire, CB1 9GT
Cambridgeshire, CB1 9GT