Seekings Close, Trumpington, Cambridge, CB2 9DJ
Rent£3,100 pcm (£753 pw)


























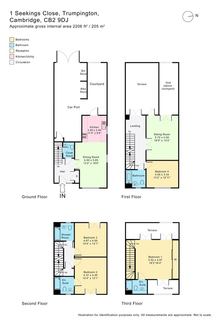
Property specification
- 4 Bedrooms
- 3 Bathrooms
- 2 Reception rooms
This four bedroom property is located on a popular South Cambridge development offering convenient access to the City Centre, mainline railway station, Addenbrooke’s hospital and the Biomedical Campus.
Key features
- Ground floor entrance hall with storage cupboard and WC. French doors to the kitchen/dining room and stairs.
- Dining room with Amtico flooring.
- Contemporary fitted kitchen with a range of integrated appliances, including a dishwasher and washer dryer. Glass door to the rear courtyard and car port.
- First floor with sitting room, French doors to the terrace., bedroom and family bathroom.
- Second floor has two bedrooms, one en-suite and separate family shower room.
- Large third floor master bedroom suite with a built-in wardrobe, access to roof terrace and en-suite shower room.
- Secure carport with space for two vehicles, bike and bin storage.
The Aura is an award-winning development off Long Road in Trumpington, South Cambridge. Nearby amenities include a doctor’s surgery, large supermarket, convenience store, post office and a number of public houses and restaurants. The Fawcett Primary School and Long Road Sixth Form College are in proximity. Cambridge offers a range of high performing schools and sixth form colleges. Addenbrooke's Hospital and the Biomedical Campus are located nearby and easily accessible via the guided bus track and cycle/foot path. Regular buses run between Addenbrooke’s Hospital, the City Centre, railway station and the Science Park.
This four-storey house provides modern accommodation and comprises a kitchen, dining room, sitting room, four double bedrooms, two en-suite, and two-family bathrooms. There is a courtyard, three terraces as well as a carport with space for two vehicles are included.
Location
Location
Train Stations
- Cambridge (Cambridge Train Station) 1.03km
- Cambridge (Cambridge Railway Station) 1.87km
- Cambridge (Cambridge station) 1.87km
- Great Shelford 3.54km
Schools - School Checker
Affordability Calculator
Use our calculator to find out if you can afford the rent for this property, using your annual salary
Please note: If you're able to pay up front for the property, or provide a Guarantor, you may still be eligible
Featured properties to rent






£2,870 pcm (£697 pw)
Milne Avenue, Eddington
Cambridge, Cambridgeshire, CB3 1BD






£2,400 pcm (£583 pw)
Montague Road, Cambridge
Cambridgeshire, CB4 1BU






£1,500 pcm (£364 pw)
The Oaks, Milton
Cambridge, Cambridgeshire, CB24 6ZG






£2,700 pcm (£655 pw)
Old School Lane, Whittlesford
Cambridge, Cambridgeshire, CB22 4YS






£2,870 pcm (£697 pw)
Milne Avenue, Eddington
Cambridge, Cambridgeshire, CB3 1BD






£2,400 pcm (£583 pw)
Montague Road, Cambridge
Cambridgeshire, CB4 1BU






£1,500 pcm (£364 pw)
The Oaks, Milton
Cambridge, Cambridgeshire, CB24 6ZG






£2,700 pcm (£655 pw)
Old School Lane, Whittlesford
Cambridge, Cambridgeshire, CB22 4YS